
Mom&Kids Culture Complex
2019 / Competition
Seongdong-gu, Seoul
Site Area : 1,065.00 m²
Total Floor Area : 1,385.16 m²
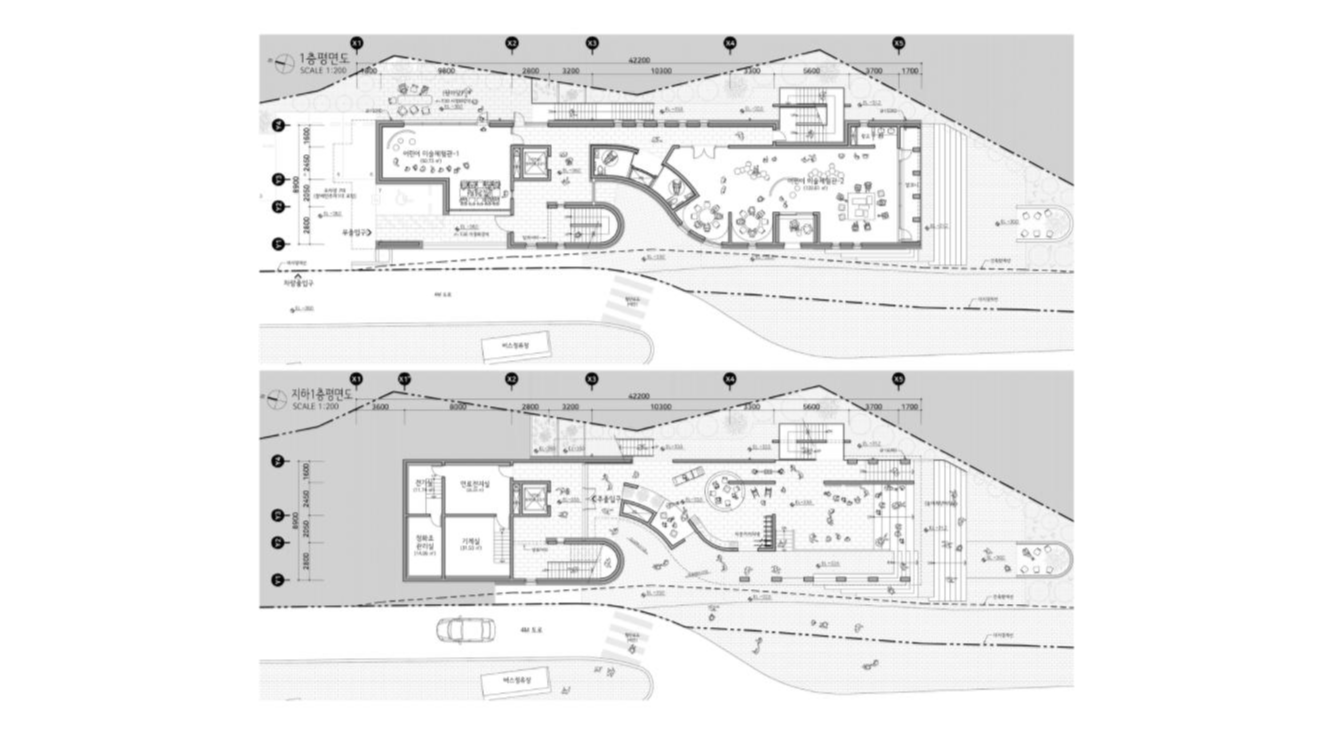
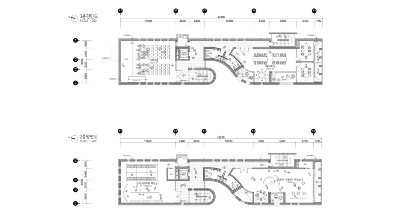
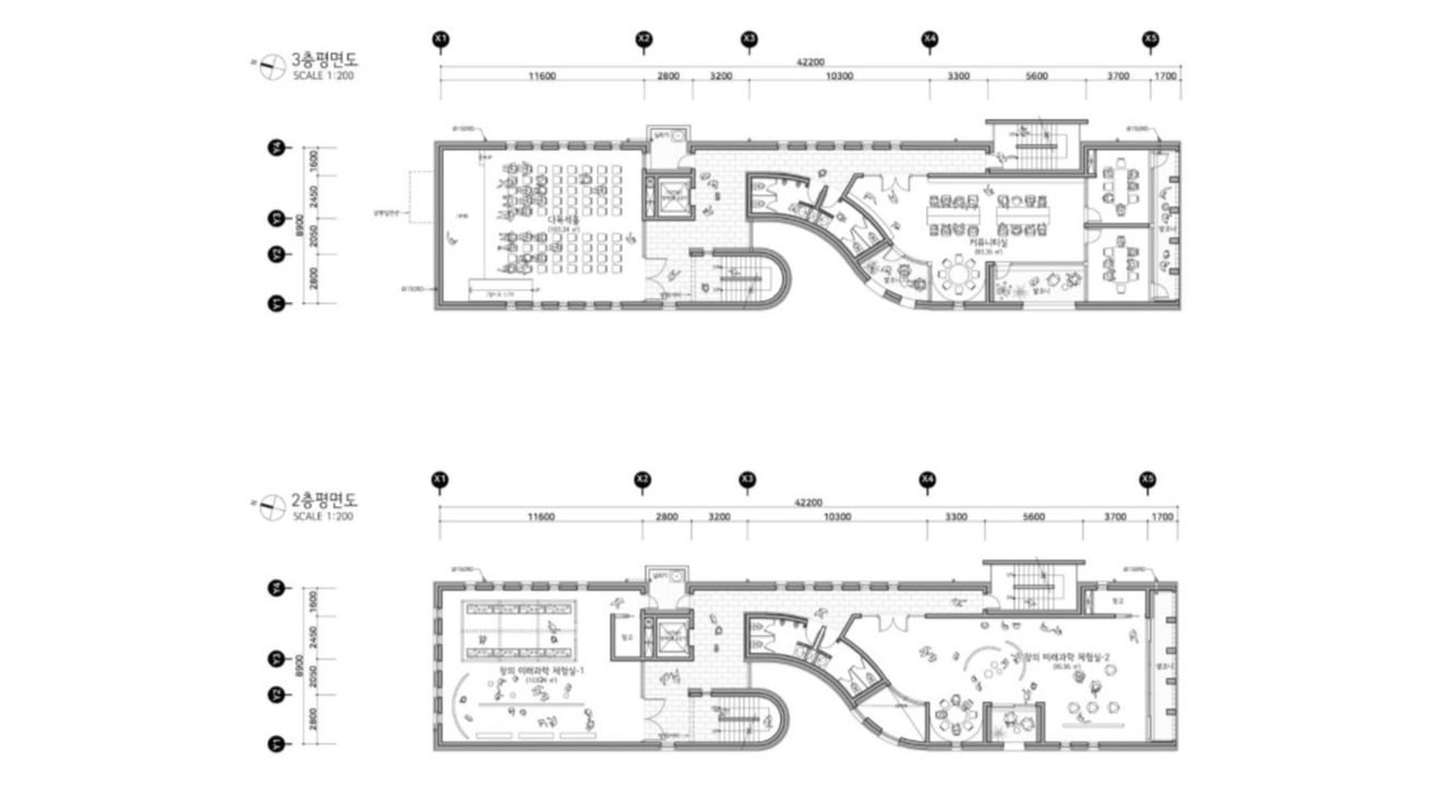
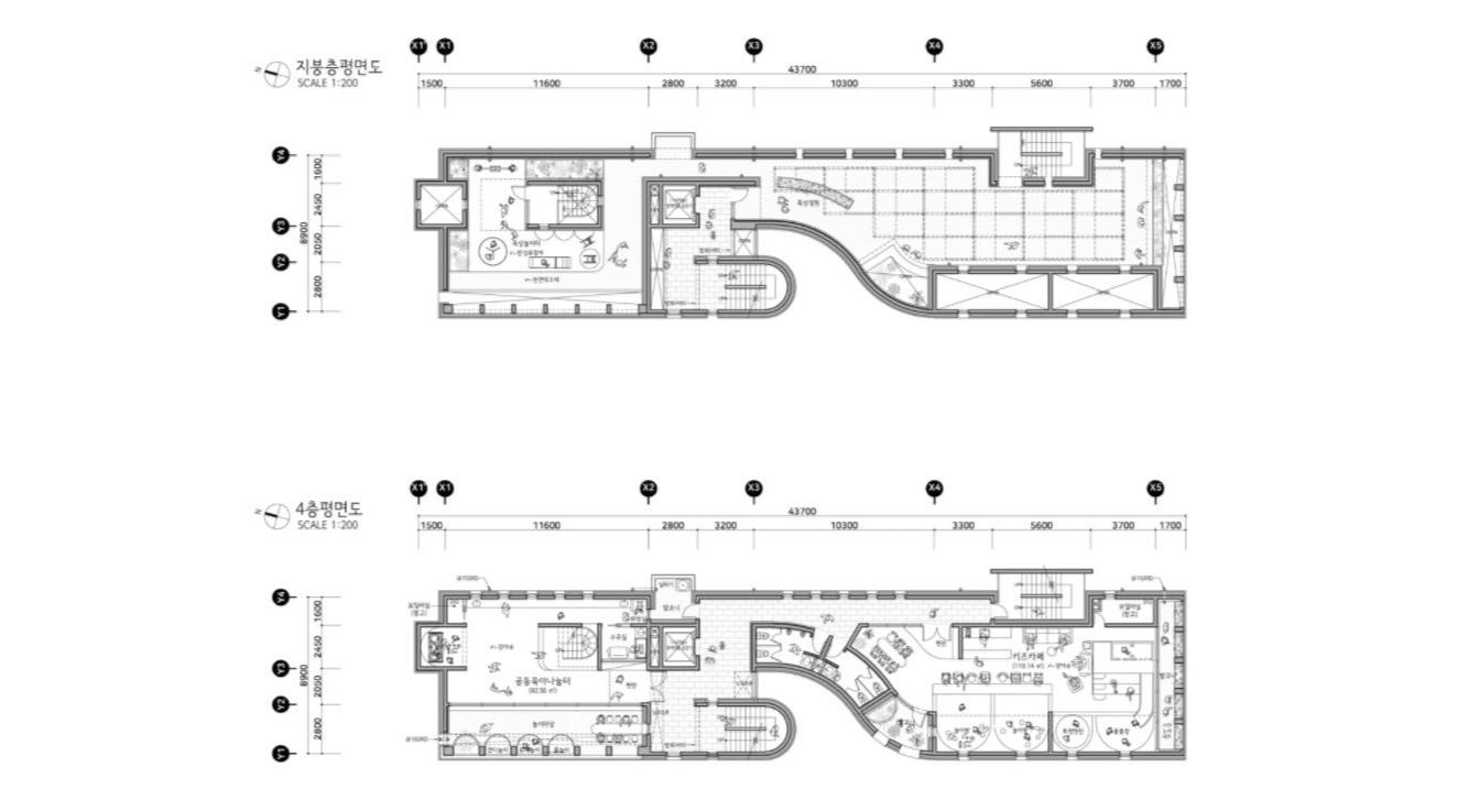
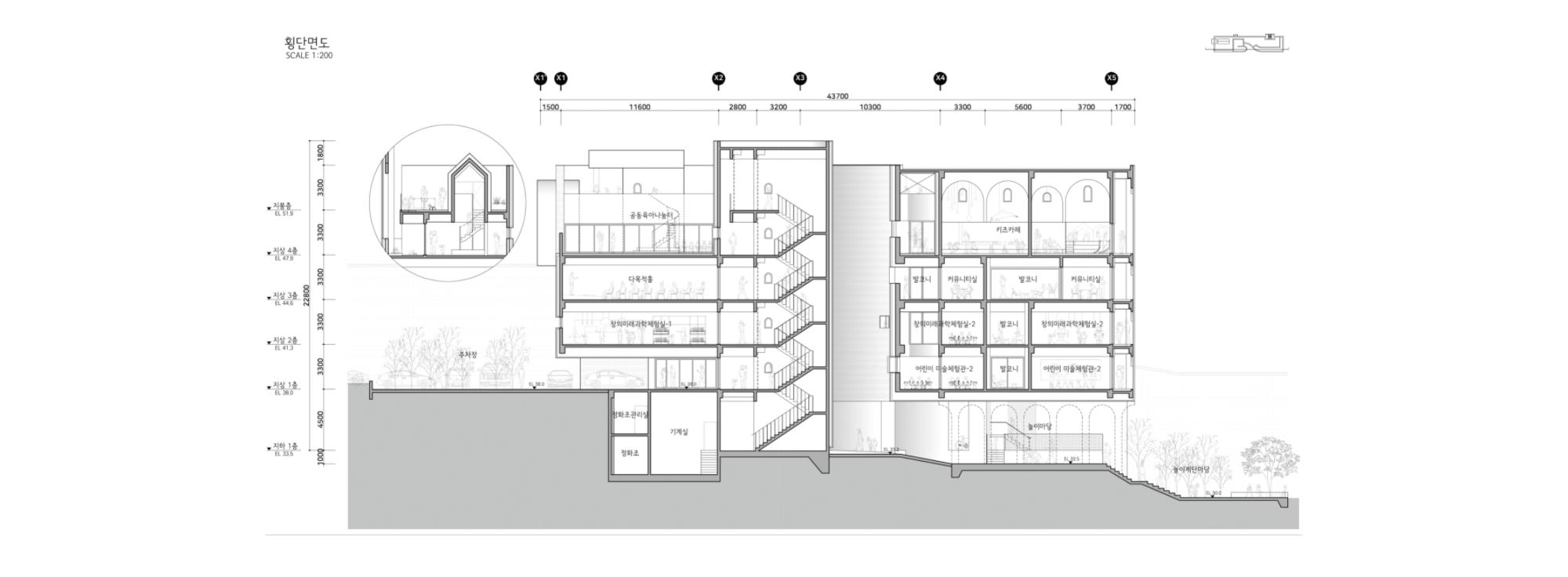
주요 프로그램은 키즈카페, 어린이 미술체험관, 과학체험관, 커뮤니티 시설이며, 사이트는 최대 10미터 높이차가 있는 경사지이다, 이러한 대지의 특성을 고려한 필로티 계획(확장된 가로, 다양한 보행동선, 절토량 최소), 동측 10미터 옹벽에 대응한 상징성 있는 매스 계획, 아이들의 흥미를 유발할 수 있는 내부공간 등이 주요한 계획 요소이다. 플루토건축사사무소에서 진행했던 현상설계 계획안으로 2등안으로 선정되었다.



















