
The Gray
2017 / Housing
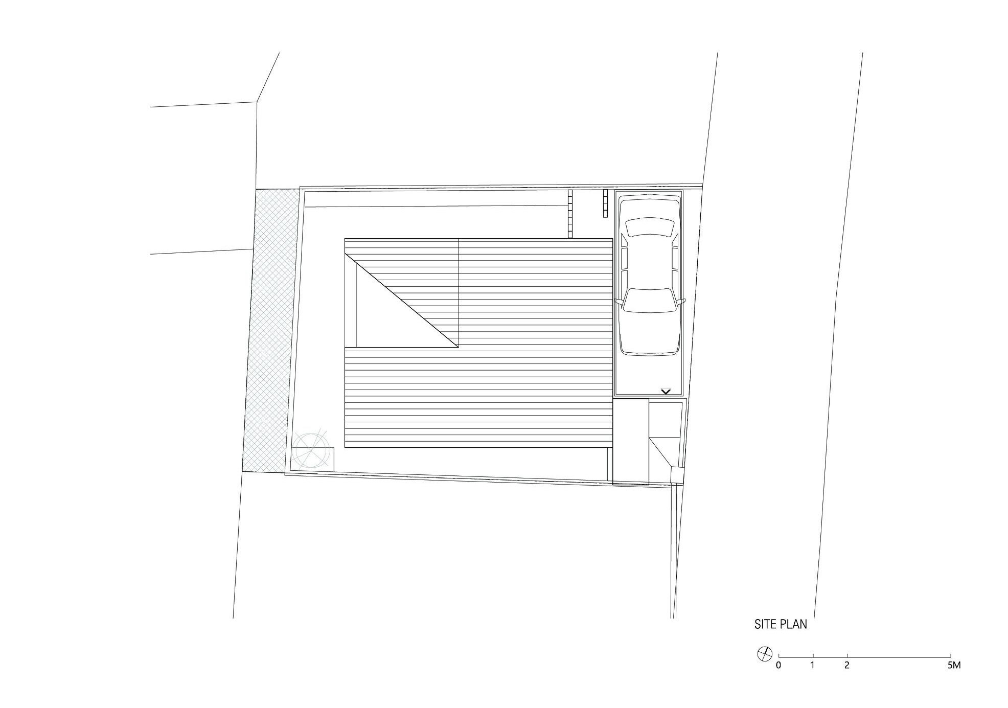
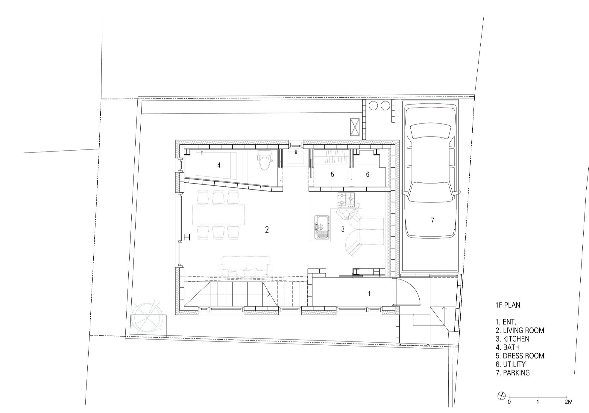
Seongbuk-dong, Seoul
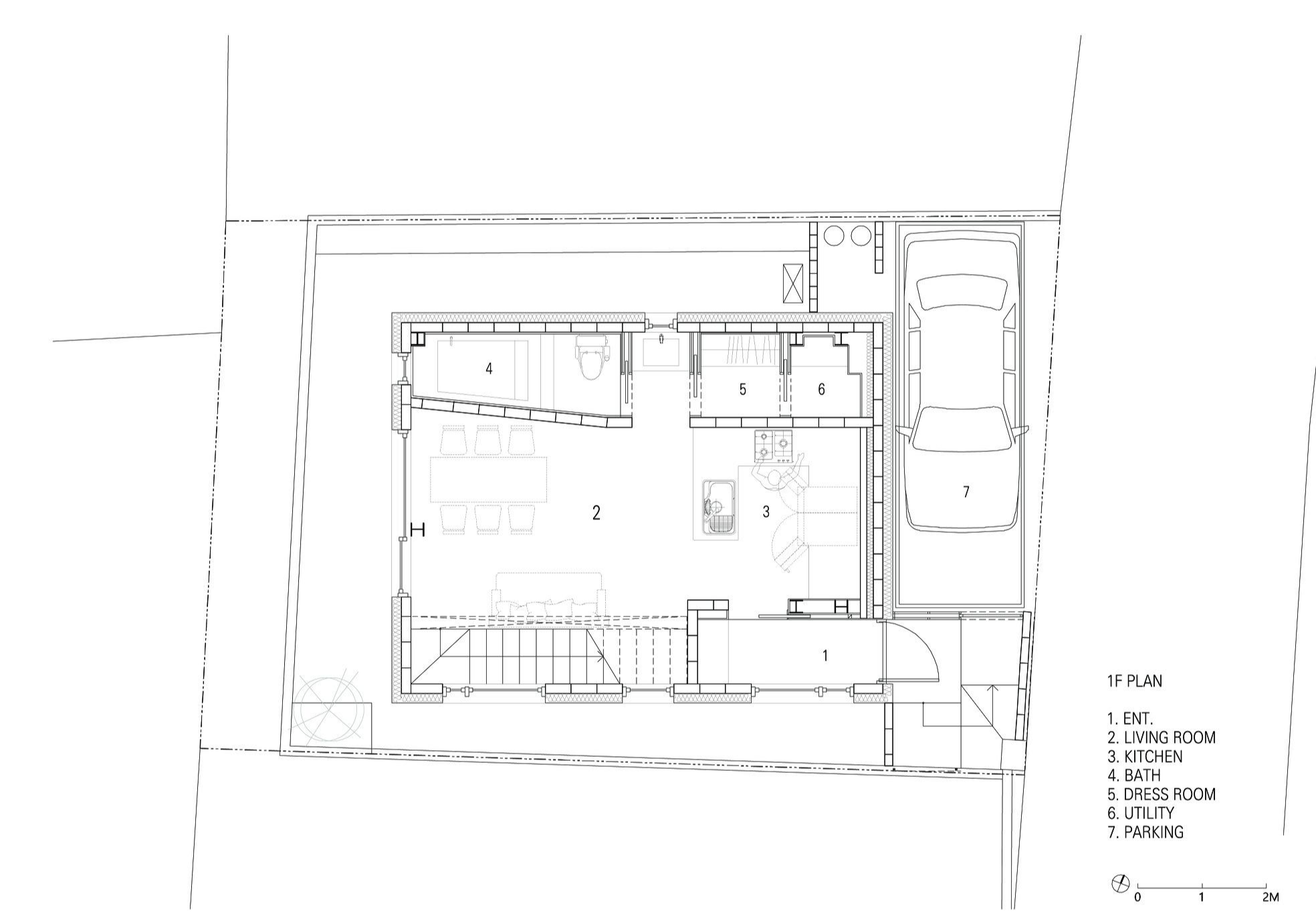
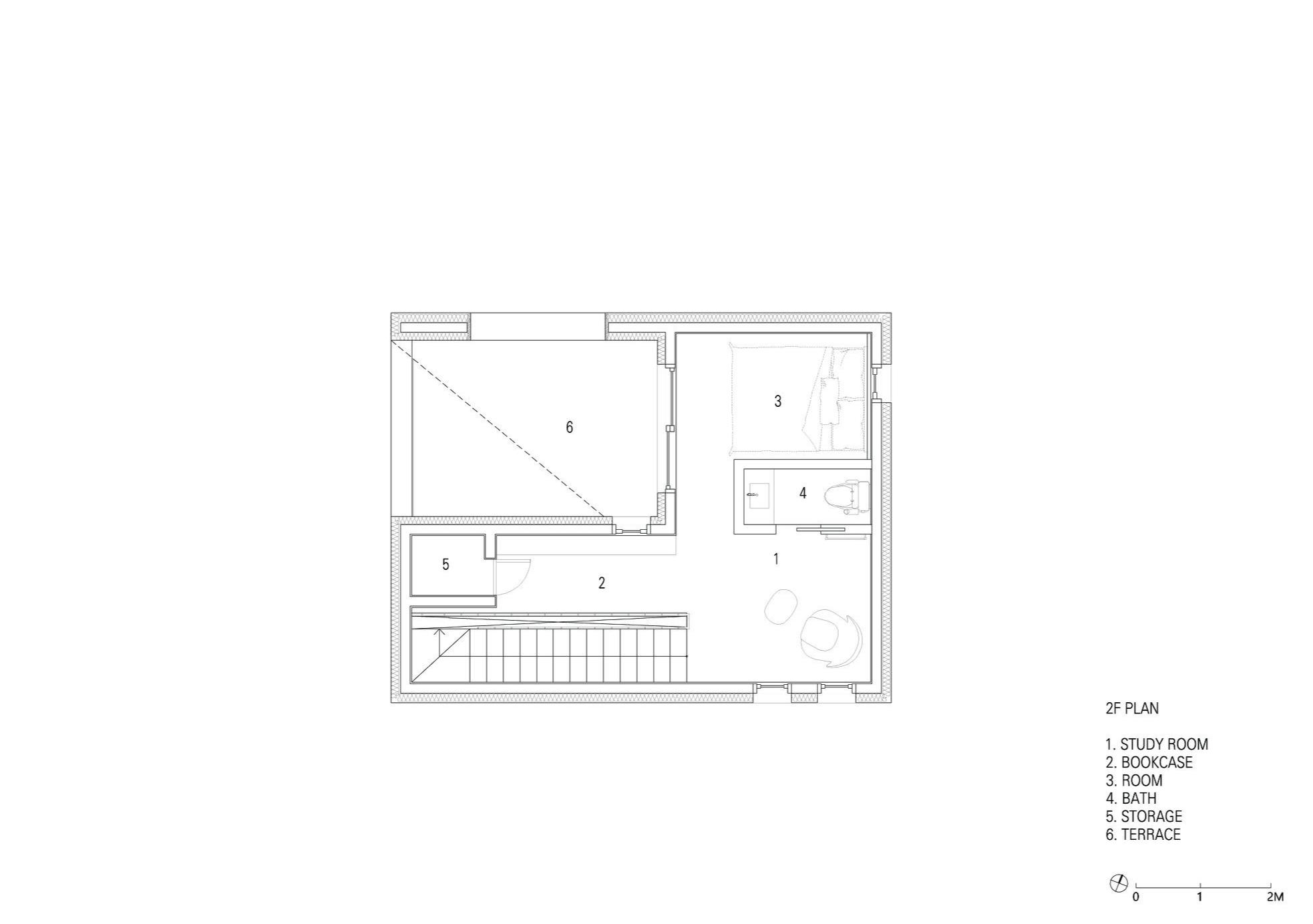
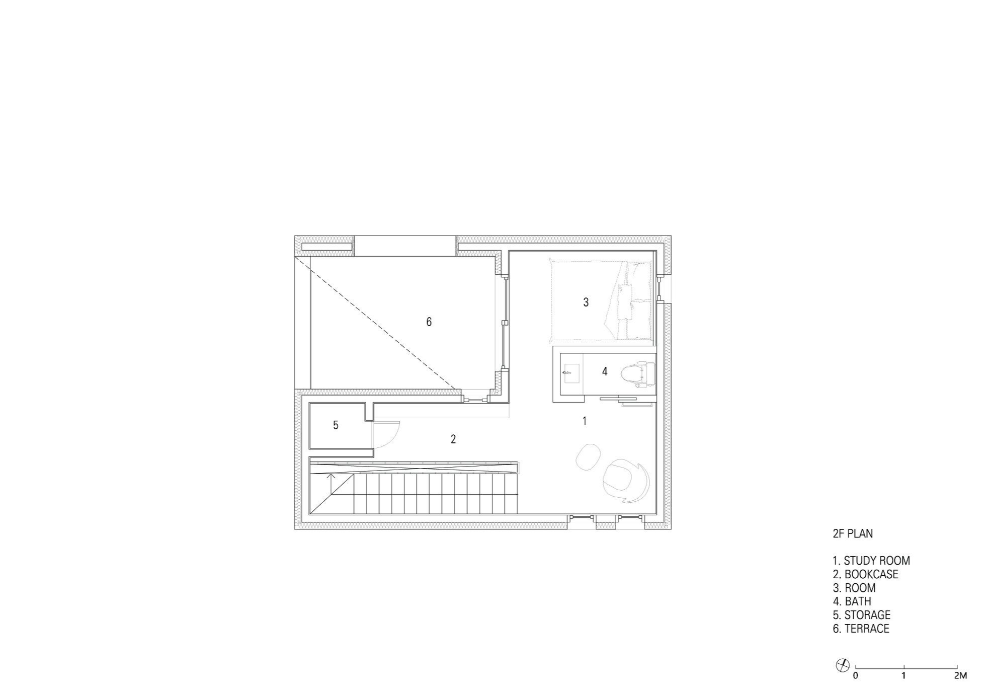
Site Area : 109.00 m²
Total Floor Area : 77.42 m²
Photograph : 이한울


















에이플래폼 동영상 촬영
#4 건축 이야기, 성북동 회색집 | 예쁜템들 모여사는 오늘의집 인테리어 고수들의 집꾸미기 (ohou.se)
#4 건축 이야기, 성북동 회색집 | 예쁜템들 모여사는 오늘의집 인테리어 고수들의 집꾸미기
온전한 은신처가 된 집 “세상의 소음에서 벗어나, 나만의 집을 갖고 싶어요.” 차 한 대 겨우 지나갈 수 있을 정도의 좁은 골목과 가파른 경사지로 인해 롤러코스터를 타는 기분이 들었을
ohou.se

