성가지구 크레이티브 거점공간 건축기획
2021-2022
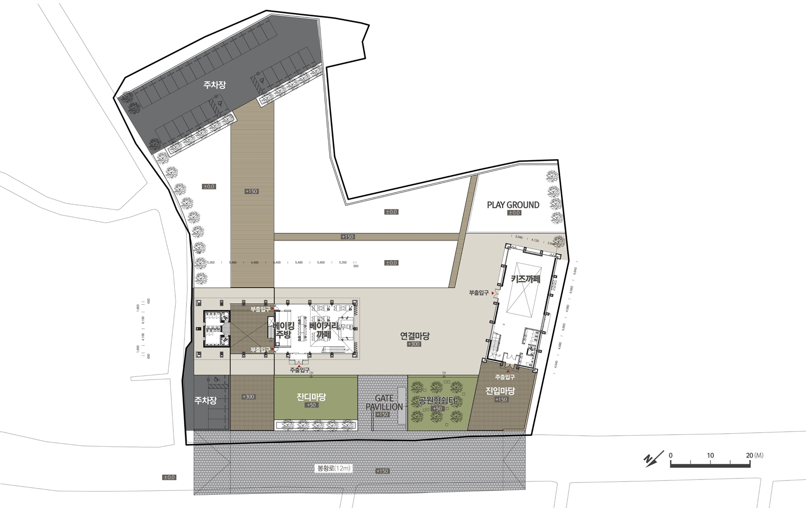
임실군 성가리 도시재생활성화계획의 4개 부문 단위사업 중 '크레이티브 거점공간 조성' 사업에 속한 창고, 방앗간 의 유휴산업시설 3개소를 새로운 공간으로 변경하는 건축기획 프로젝트이다. 2개의 창고 중 하나는 베이커리 카페 및 체험장으로 나머지 하나는 키즈카페, 돌봄센터, 작은도서관으로 계획되었다. 베이커리 카페동은 기존 건물의 한쪽을 완전히 개방하여 후면의 마당으로 연속된 보행이 이루어지도록 하였으며, 키즈카페동은 기존 붉은 벽돌을 최대한 유지하고 내부와 외부에도 벽돌을 적용하여 상징성을 부여하였다. 기존 건물의 외관과 재료를 최대한 유지하면서도 새로운 공간으로 변모하길 기대하였다.












