
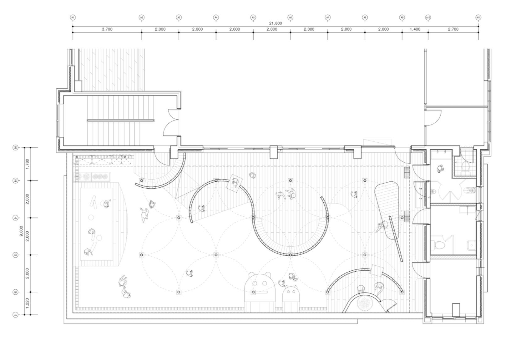
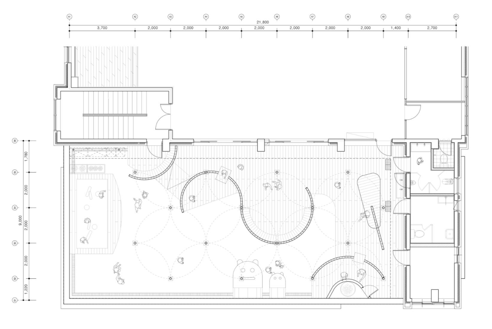
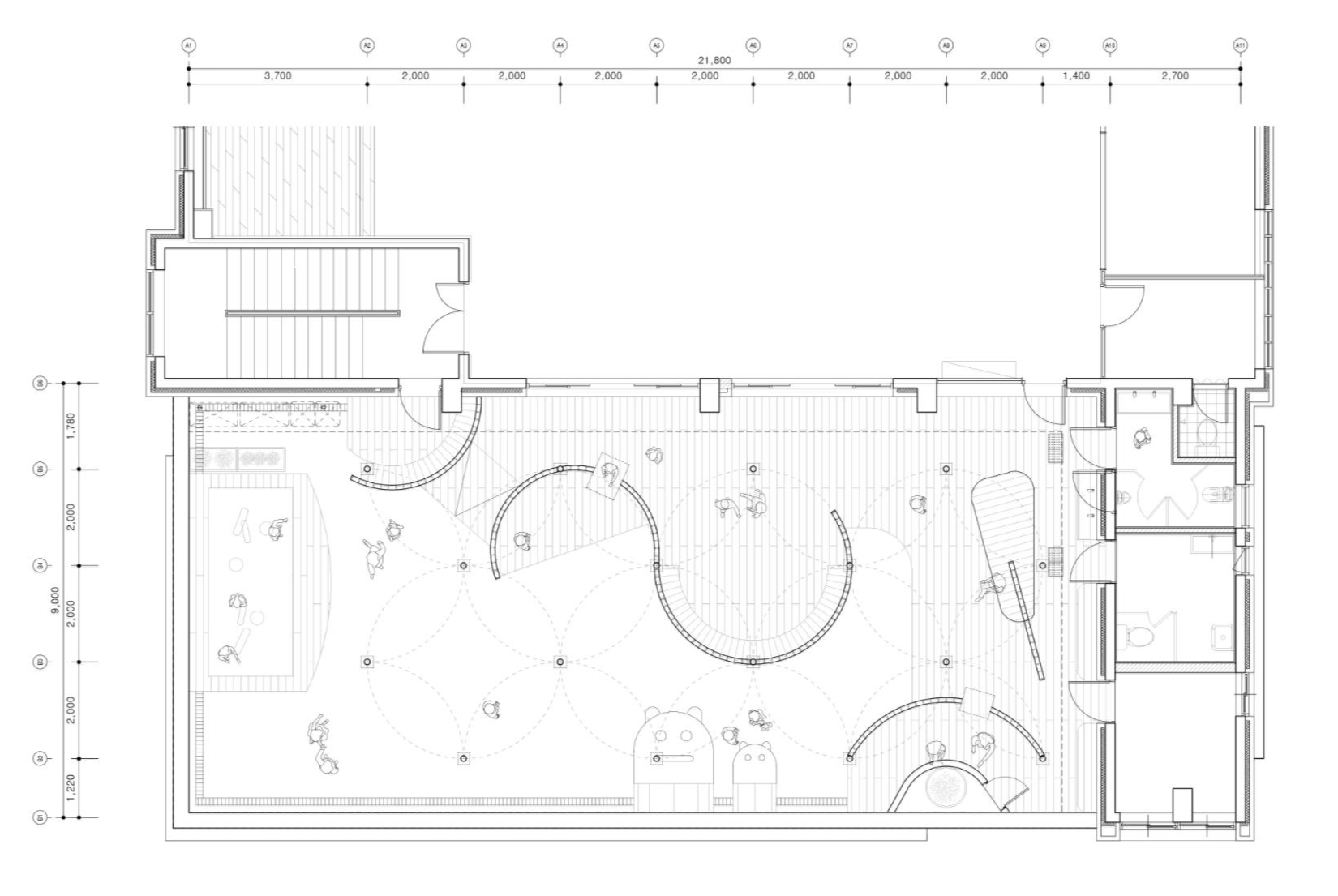
서울신정유치원_마루놀이터
2020 / 서울교육청 학교공간 디자인혁신 외부공간 모델개발 (꿈담건축가)
Yangcheon-gu, Seoul
Total Floor Area : 171.9 m²
Design Team : 이아름
서울교육청 학교공간 디자인혁신 사업에 의한 꿈담건축가로 선정되었고 서울신정유치원을 담당하게 되었다. 유치원에서 신청한 공간은 강당과 면해 있는 4층 베란다로 현재는 비어있는 상태이고, 아이들을 위한 놀이공간으로 변경된다. 신청공간은 아이들이 마음껏 뛰어놀 수 있는 정도의 공간은 아니다. 활동적인 놀이기구가 중심이 되는 공간보다 아이들의 호기심을 자극할 수 있는 '공간' 중심으로 계획하였다. 일부 햇빛도 가릴 수 있는 꽃무늬 캐노피를 적용하여 다양한 그림자 효과를 기대하였다. 유선형의 낮은 경계는 아이들이 자연스럽게 놀이공간으로 접근하도록 유도하며 유리블럭을 적용하여 아이들의 호기심을 자극하는 즐거운 놀이터가 되고자 했다.



























