본문 바로가기

works/2019 903 House

903 House

903 House

2019 / Housing

Taean, Chungnam

Site Area : 818.00 m²

Total Floor Area : 215.37 

Photograph : TOV

 

자식들을 모두 도시로 보내고 남은 부부가 20년 넘게 살아온 집을 허물고 새로운 집을 지을 계획을 하면서 만나게 된 프로젝트이다. 이렇게 인연이 된 건축주 부부의 요구 사항은 “너무 복잡하지 않게” “너무 어둡지 않게” 이 두 가지의 조건이 전부였고 전적으로 믿고 신뢰를 주셨다.


200평이 넘는 너른 대지는 후면부에 오래된 시골집 2~3채 정도만 자리하고 사방으로 열린 곳이다. 전면은 산으로 둘러싸여 있고 나대지가 있어 주변에 시각적으로 제한이 될만한 요소는 없는 평지로 이루어진 전형적인 농촌의 한적한 대지이다.

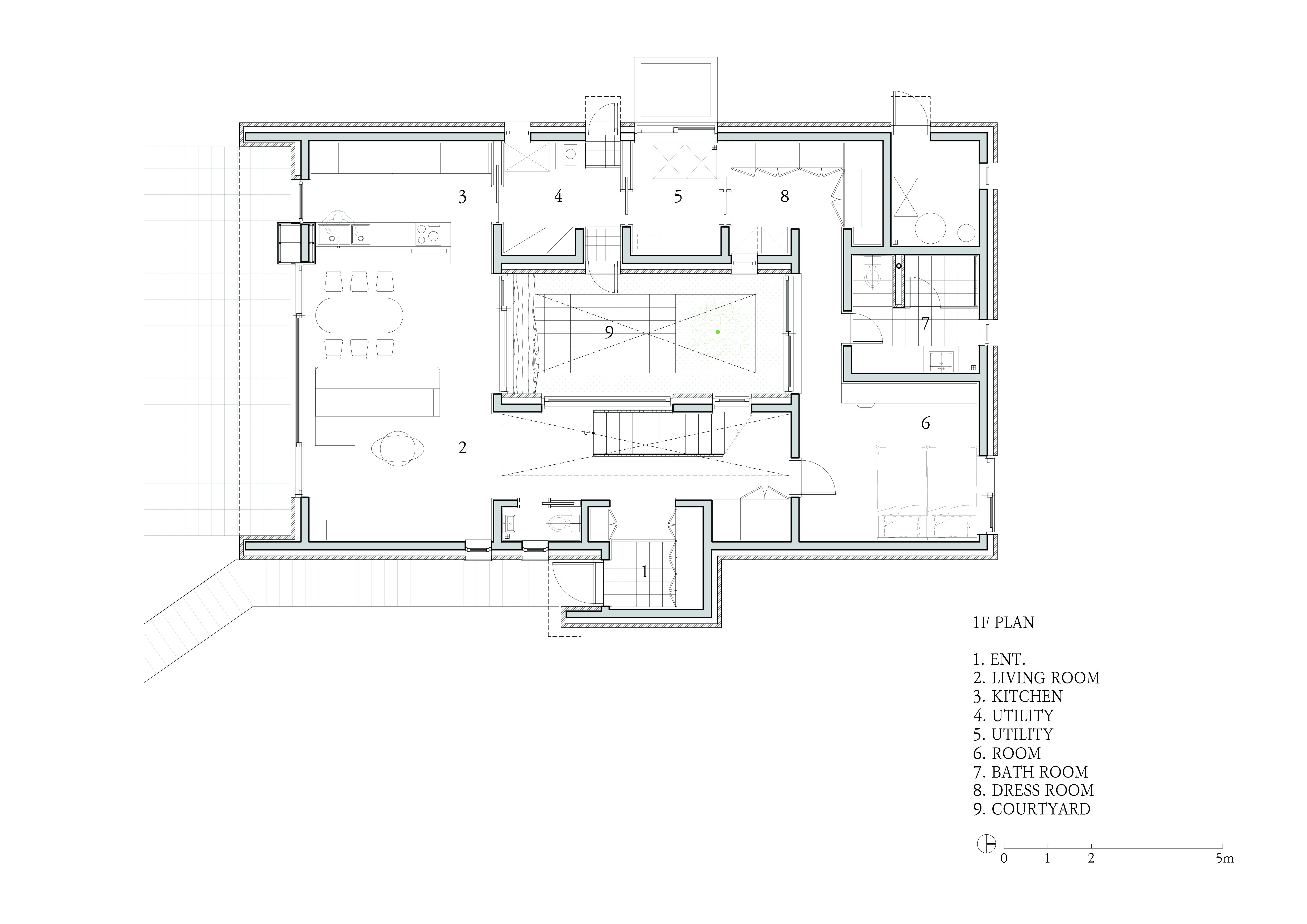
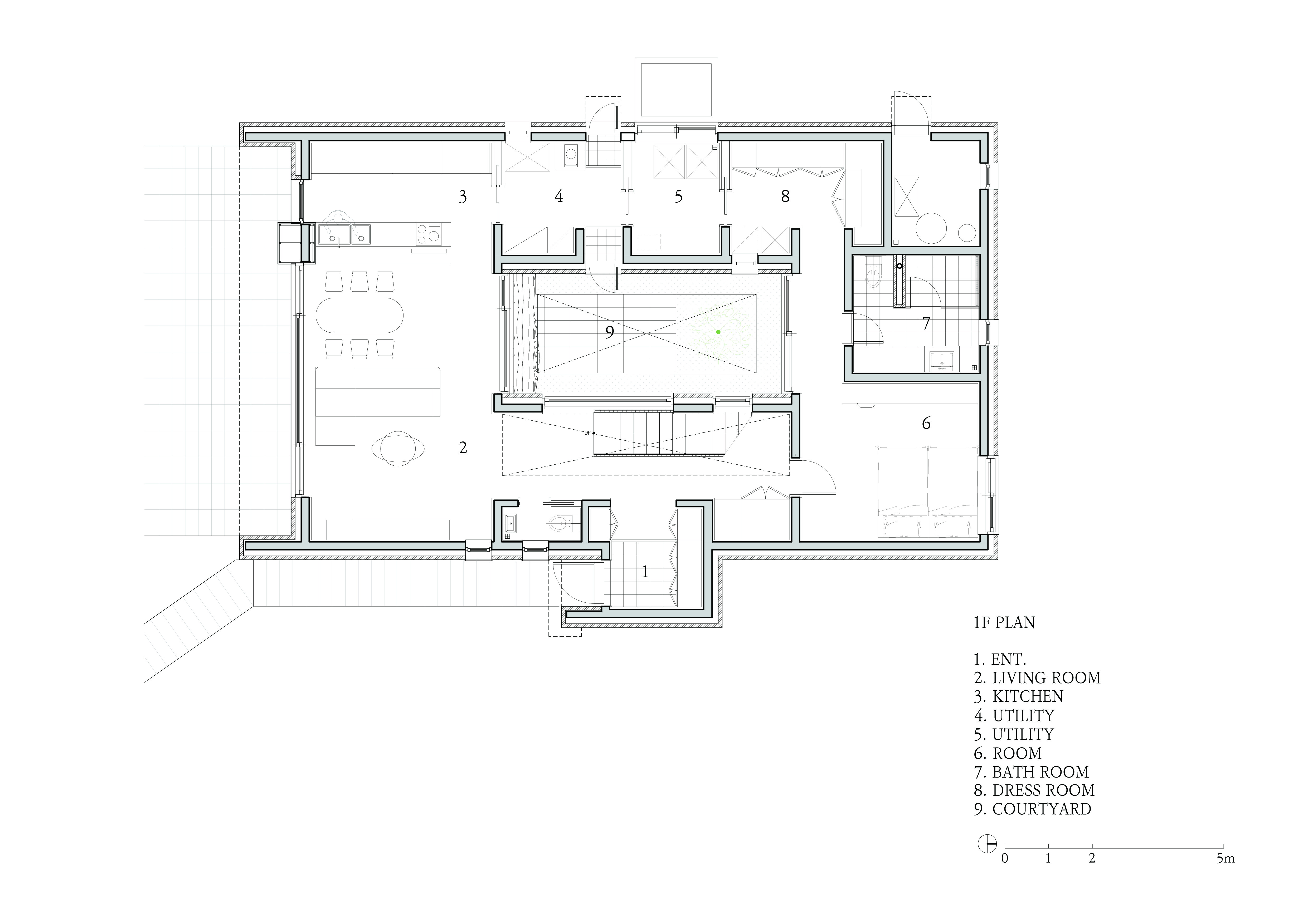
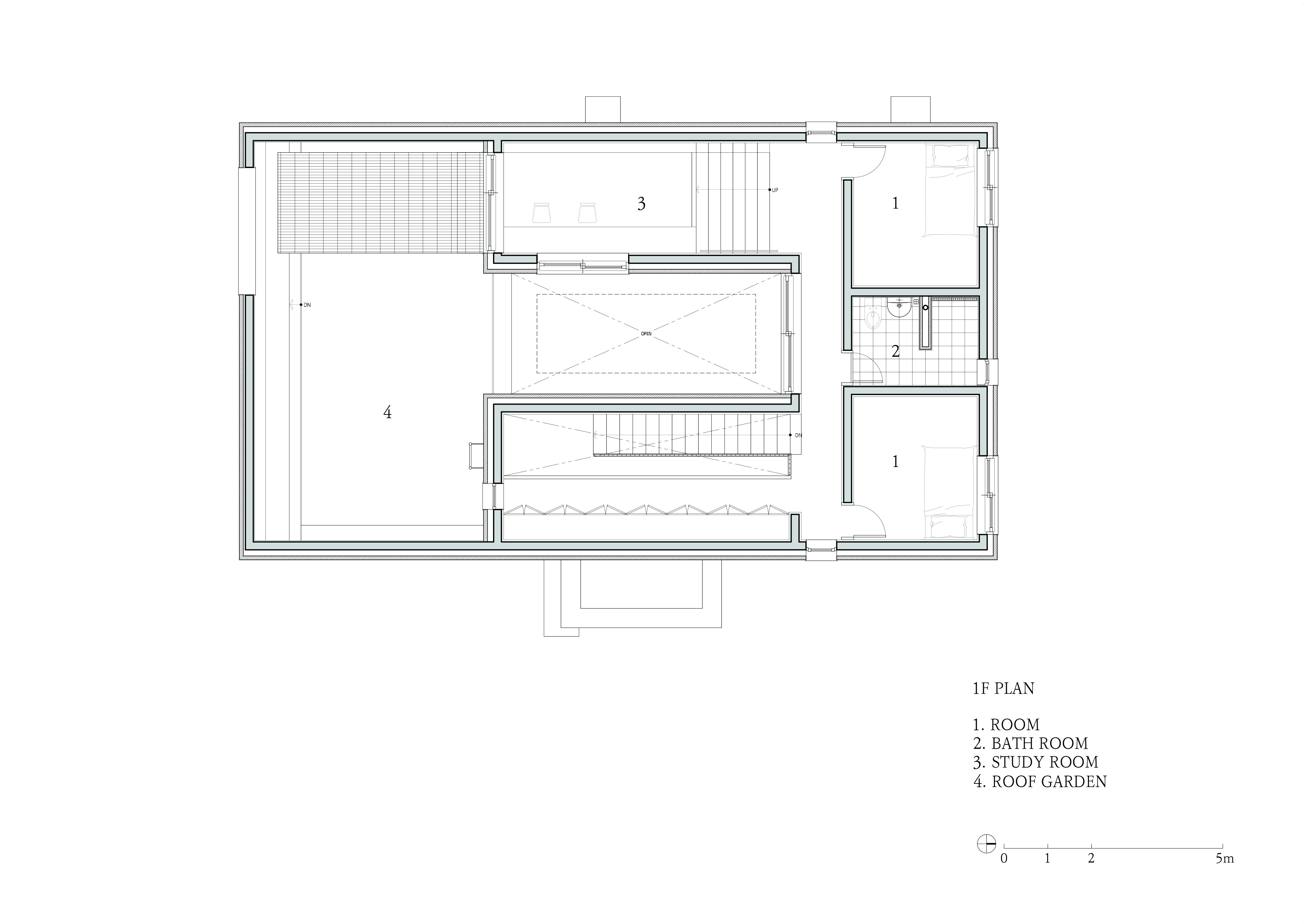
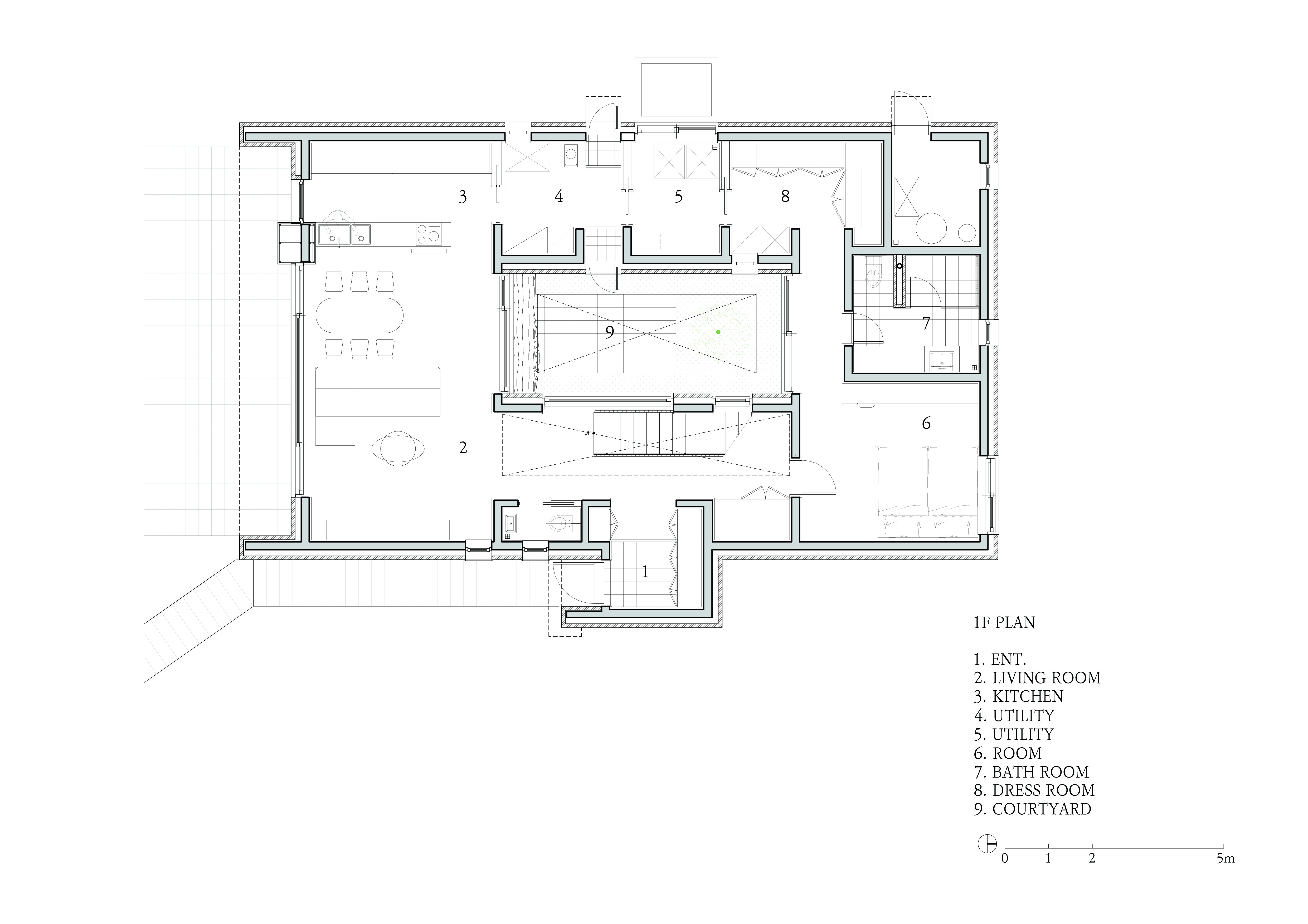
건축주의 복잡한 요구도 없고, 대지가 가진 제약 조건도 없을 때 계획의 방향은 더 어려워진다. 너무 많은 유연성은 오히려 생각을 펼쳐 놓기만 하고 모으긴 더 어렵다. 도시와 달리 농촌지역은 외부공간이 더 열려있어야 된다는 생각이 자연스럽게 들지만, 정작 이웃 간에 격이 없기에 더 경계가 모호해지고 낮아진 경계는 내 공간을 더 침해당하기 쉽다. 대지를 모두 마당으로 쓰는 것도 익숙하지 않으면 관리도 어렵고 오히려 버리진 공간처럼 되기 쉽다. 열린 마당은 대지를 둘러싼 자연의 연속으로 존재하고, 닫힌 사적인 마당이 오히려 이러한 장소에 더 필요한 것이라 생각된다. 건폐율 20%라는 제한 안에서 최대한 중정의 자리를 배분했다. 집은 주 도로에서 물러나 전면에 마당을 배치하고 거실을 통해 중정으로 다시 마당이 연속된다. 복잡하지 않되 1층 층고 높이를 달리하여 공간감을 다르게 했으며, 2층 서재를 스킵플로어로 계획하여 높이 차이를 활용했다. 서재 전면에는 옥상마당을 가지되, 전면으로 벽을 만들어 외부에서 바로 노출되지 않는 외부 공간이 되도록 정리하였다.