본문 바로가기

works/2017 Taean House

Taean House

Taean House

2017 / Housing

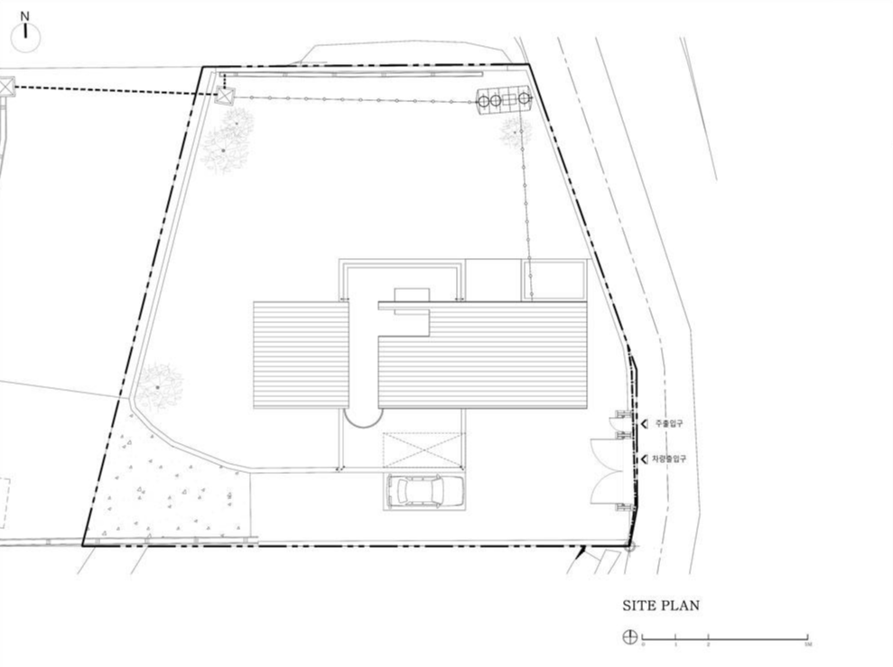
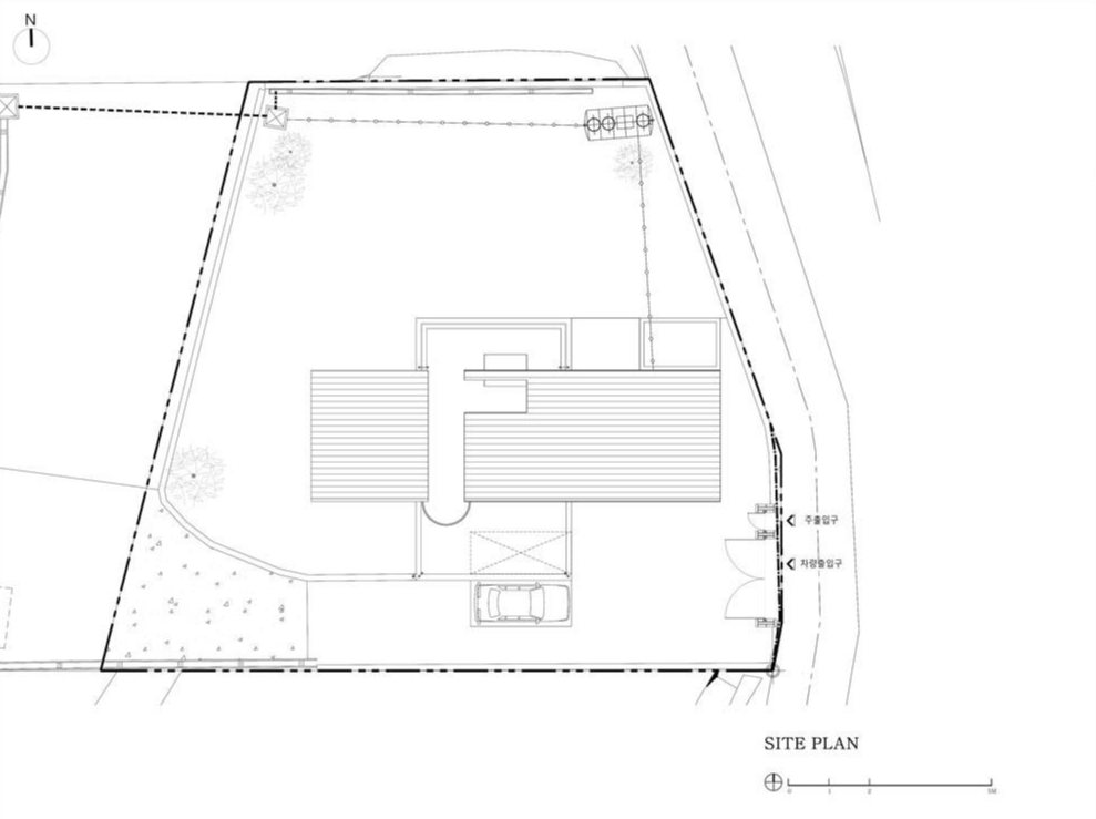
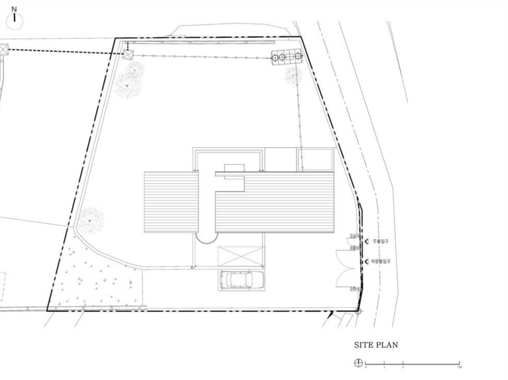
Taean, Chungnam

Site Area : 818.00 m²

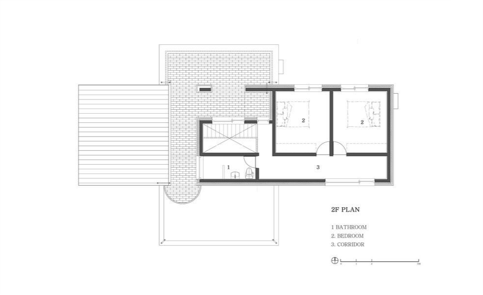
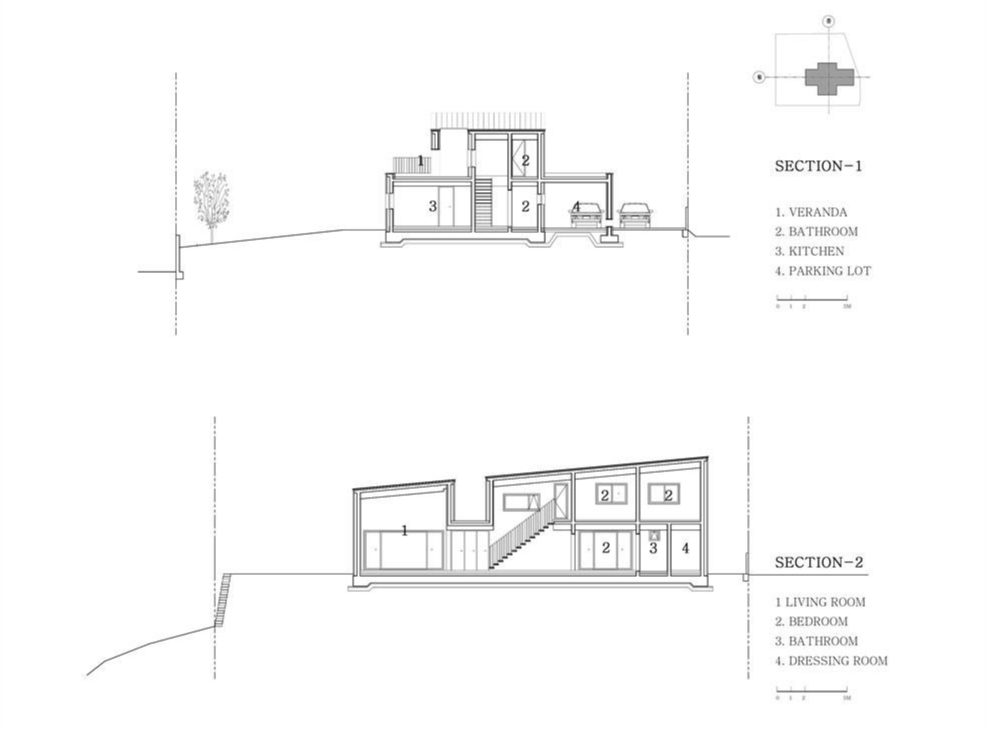
Total Floor Area : 215.37

Photograph : 김창묵

(주)아름건축사사무소+강미란

 

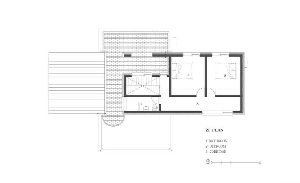
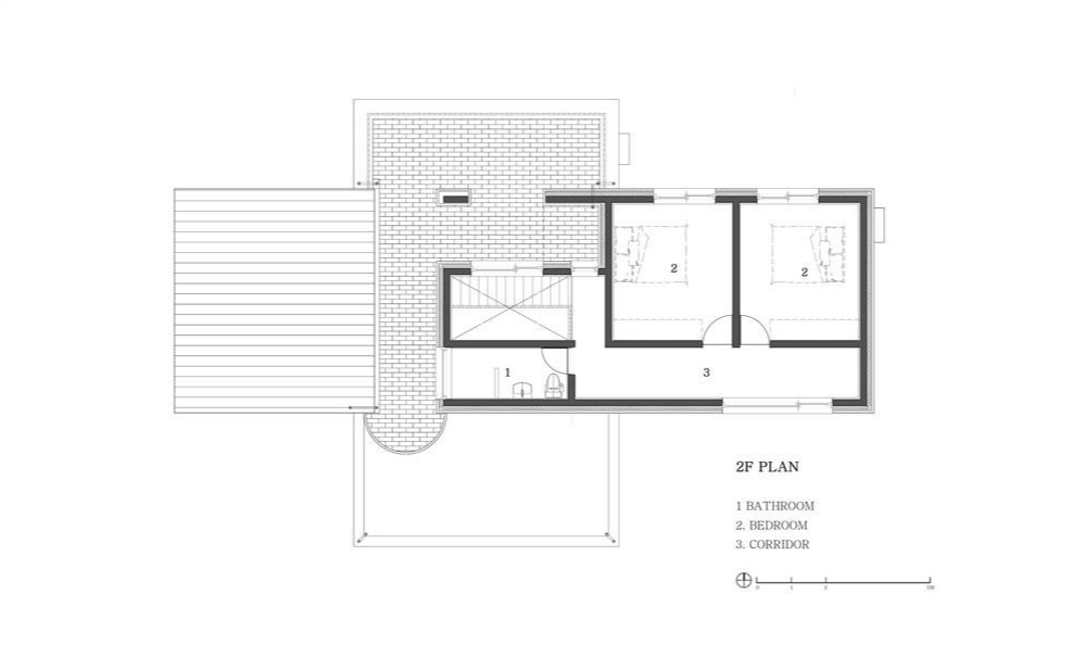
낮은 언덕에 위치한 대지는 태안 시내가 한눈에 펼쳐지는 곳이다. 이곳에 위치한 집은 낮은 언덕의 경사를 반영한 지붕 형태와 주변 전망을 담아내는 테라스로 구성되었다. 넓은 대지와 주변에 제약조건이 없는 대지는 많은 가능성을 담아낼 수 있기 때문에, 초기 단계에서 계획의 방향을 정하기 오히려 어렵다. 몇 번의 계획안이 수정되었고 설계변경을 거쳐 단순한 주택으로 정리되었다.