
Showroom & Cafe (proposal)
2020 / Remodeling
Deogyang-gu, Goyang
Site Area : 1,284.00 m²
Total Floor Area : 1,499 m²
Design Team : 이아름
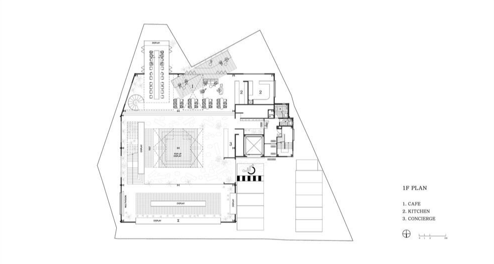
기존에 창고로 사용하던 공간을 전시장 및 카페로 변경하는 프로젝트이다. 높은 층고와 열린 평면을 이용하여 다양한 전시공간과 카페공간을 구성하였다. 일부 증축 및 외벽 변경도 계획 내용에 포함되었는데, 유리블록을 외벽 및 내부벽, 가구 등에 반영하여 유리블록의 다양한 쓰임새에 관하여 고민하고 흥미롭게 진행할 수 있었다. 계획단계에서 프로젝트가 중단되어 현실화되진 못했지만 대규모 공간 안에서 자유롭게 공간을 계획할 수 있었던 작업이었다.















