
Podonamu House
2017 - 2020 / Commercial + Housing
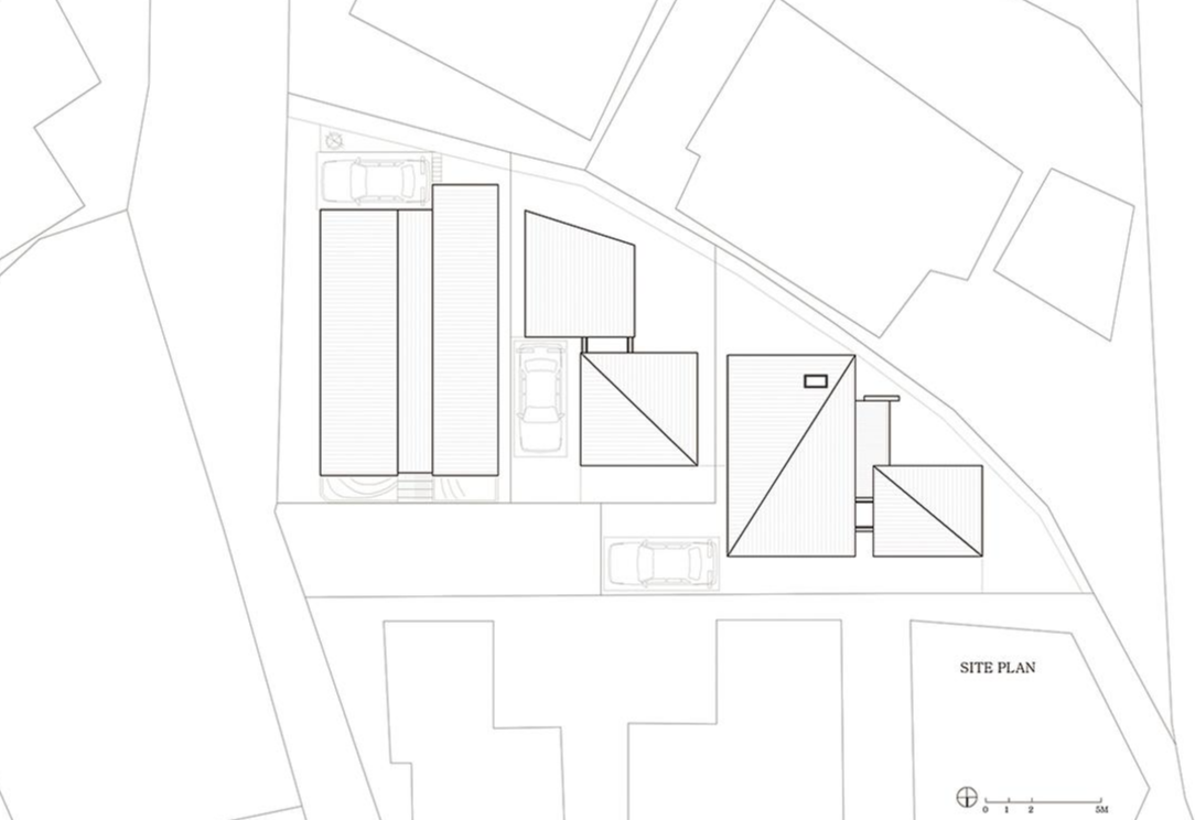
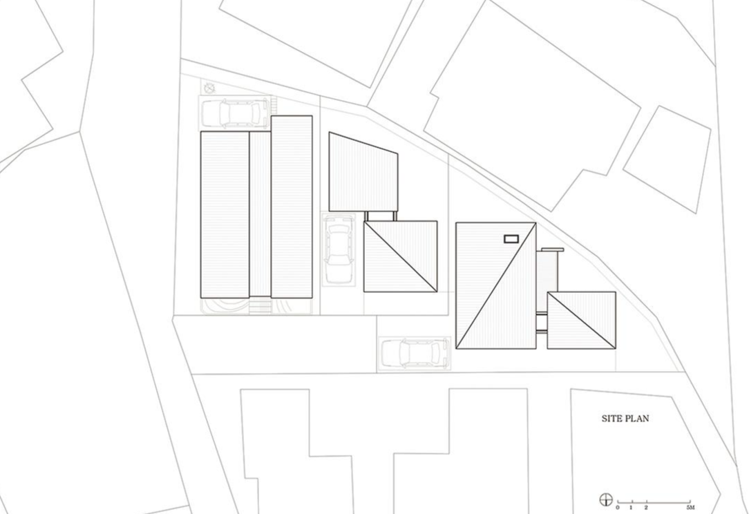
Gangmae-dong, Goyang
Site Area : 509 m²
Total Floor Area : 160.74 m², 84.94 m², 127.21 m²
Photograph : 김성철 + 건축사사무소 무드에이
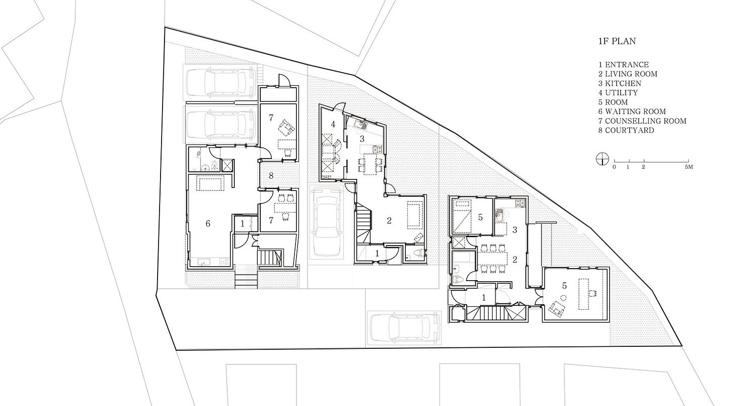
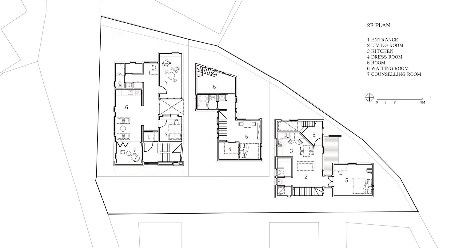
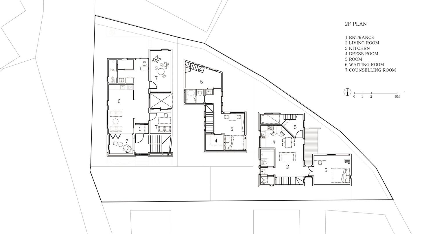
3가족을 위한 3채의 작은 주택. 큰딸 가족 그리고 어머님과 함께 살고 있는 작은아들 가족 이렇게 각기 다른 공간에서 다른 삶을 살아오던 가족들이 그들의 공간을 떠나 각자의 단독주택을 지어 같이 살아가기로 하면서 이 프로젝트가 시작되었다.
대지는 북향으로 자리 잡은 곳이지만 뒤로 산이 감싸고 전면으로 낮아져 향이 양호하며, 건물로 둘러싸인 복잡한 도심지가 아닌 자연경관이 풍부한 땅이다. 150평의 땅을 50평, 51평, 36평으로 분할하여 계획했다. 단독주택 용지로서는 작은 편에 속하는 대지이며, 건물 규모 또한 한 층의 면적이 12평에서 18평 사이로 매우 작은 편에 속한다. 협소한 대지로 인해 계획의 유연성은 적으나 이러한 제약조건이 설계의 주요한 계획 요소로 전환되기도 한다. 모든 실들은 최소의 기능을 수행할 수 있을 정도의 크기를 갖고 남은 여유분은 복도, 계단 등의 공간이 스치는 공간이 아니라 하나의 공간으로서 기능하도록 배분하였다. 이로 인해 작은 공간이지만 다른 내부공간을 갖도록 제안했다.
전체적인 형태는 두 개의 매스로 구분하고 외부공간과 매스를 엇갈려 배치했다. 두 매스를 잇는 복도는 벽과 천장을 유리로 처리하여 두 매스 사이는 다른 공간을 통해 연결되도록 하였다. 이러한 기준을 가지고 3채의 집을 구성하였고 건축주분께서 어느 날 “포도나무 집”이라는 이름을 지어 오셨다. 집의 형태와 잘 맞는 이름이었다. 3채의 계획이 완성되었으나 2채만 지어지게 되었으며 이후 나머지 한 채는 건축주분의 요청에 의해 근린생활시설로 용도를 변경하게 되었다. 3집 모두 비슷한 외장재를 쓰되, 각 집의 성격을 드러낼 수 있도록 각기 다른 색의 벽돌을 사용하였다. 작은대지, 작은주택에서 외부공간과 건물의 관계, 건물 내의 공간들의 관계에 대해서 많은 고민을 할 수 있었던 프로젝트였다.



























